Eleanor Roosevelt’s New York Townhouse Hits the Market for $20 Million
The six-story limestone gem is where the first lady spent her final years

The Upper East Side townhouse where beloved First Lady Eleanor Roosevelt spent her final years has hit the market for just under $20 million.
Completed in 1898 by architecture firm Buchman & Deisler, the Renaissance Revival gem was the last place Roosevelt, who was married to President Franklin Roosevelt, lived before her death in 1962. (President Roosevelt passed away during his fourth term, in 1945.) After leaving the White House, the former first lady was named a delegate to the United Nations General Assembly and relocated to New York, where she later purchased the six-story stunner jointly with close family friends, who lived in the top-floor unit.
Roosevelt was known to host political luminaries, among them President John F. Kennedy and Soviet premier Nikita Khrushchev. The estate is being sold along with a collection of memorabilia Roosevelt left behind, including a letter from her lawyer that recorded her deed.
Recommended: Jeff Bezos Buys $165 Million Warner Estate in Beverly Hills
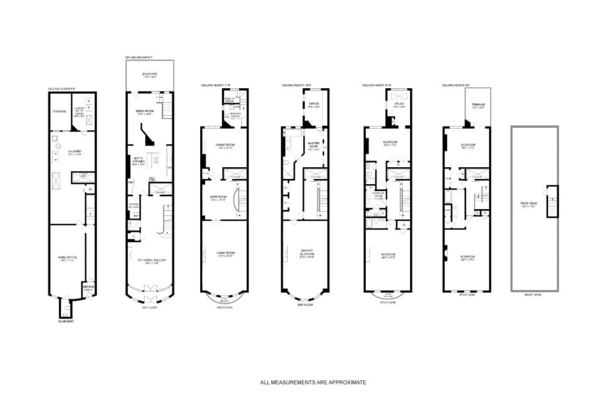
The current owners, who bought the 7,500-square-foot home in 1999, combined the two apartments to create a single-family layout. Located within the Upper East Side Historic District, the limestone landmark now boasts a full-floor master suite with home office, an elevator servicing all levels, a garden in the rear, and a roof terrace with views of nearby Central Park.
Take a tour of the six-bedroom, five-bath home below:








55 East 74th Street is listed with Lisa Simonsen and Gabrielle Corrao of Douglas Elliman.